Burlington Lane | Grove Park | W4
Property Features
Period family house
Four bedrooms - One bathroom
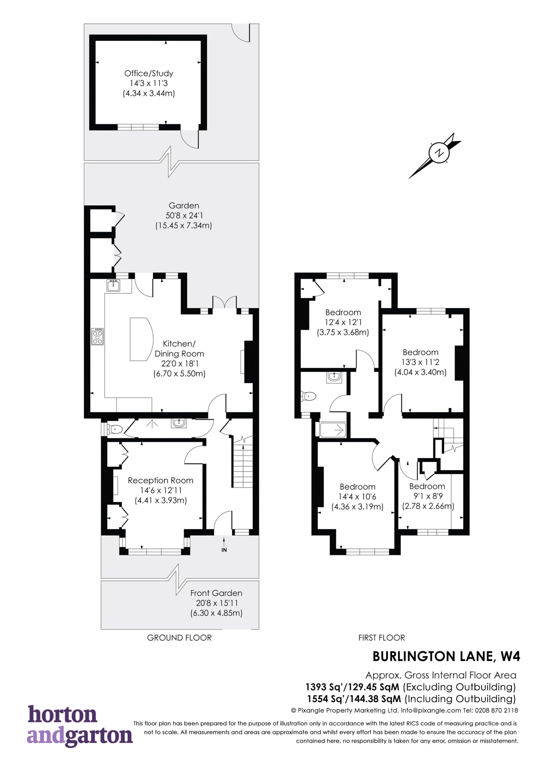
1393 Sq' - 129.45 SqM
50' Southeast facing garden
EPC rating D
Chiswick
About this property
This well-presented period family home, circa 1393 Sq' - 129.45 SqM, is ideally positioned close to both Chiswick House and Grounds and Chiswick Mall.
Comprises hallway, front aspect reception room, downstairs wet room with wc, a 22' x 18'1 kitchen/dining/family room with doors opening to the 50' Southeast facing garden, with rear access and garden studio/office. Upstairs on the first floor there are four bedrooms and one bathroom.
Tenure: Freehold
Council Tax: LBH Band F
Grove Park is a popular part of W4, the highly sought-after properties in this leafy residential area enjoy ready access to Chiswick House and Gardens, several excellent schools and the River Thames is on the western edge of the area.
For sports enthusiasts, Duke Meadows is located a short distance away and is a great place to visit. The club has an array of sports facilities, including tennis, cricket, golf, and even indoor skiing. It also has bases for rowing and sailing along the River Thames.
A local favourite, Chiswick House and Gardens is close, where you can wander through the landscaped gardens and admire 18th-century architecture. The Duck Pond Market is held at Chiswick House and Gardens every fortnight.
Families are particularly drawn to Grove Park for the excellent school options, including Grove Park Primary School, Chiswick School, and Cavendish School.











































