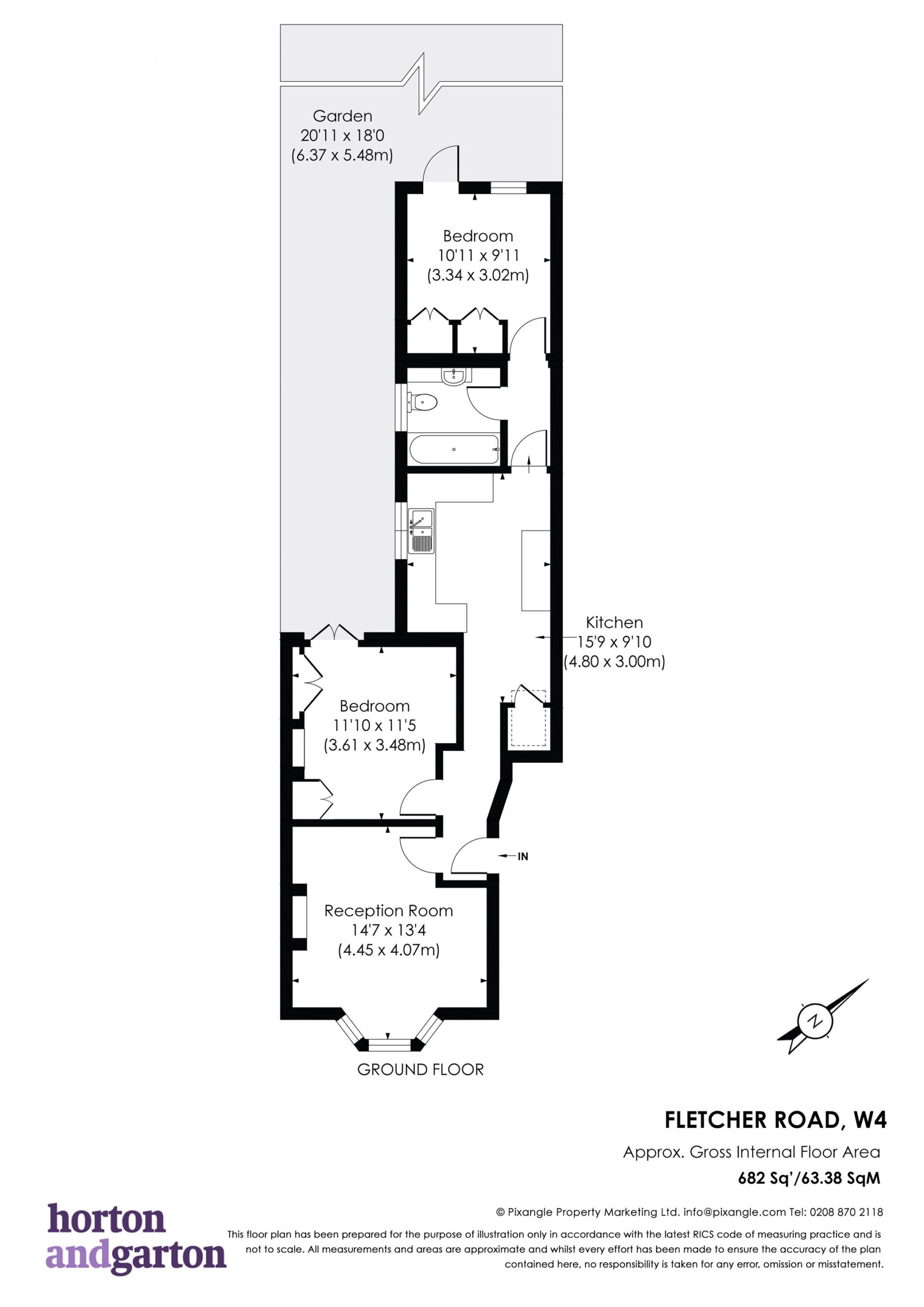
Fletcher Road | Chiswick | W4
Property Features
Ground floor garden flat
Two bedrooms - One bathroom
682 Sq' - 63.38 SqM
Well presented throughout
EPC rating C
Chiswick
About this property
This Victorian ground floor garden flat, circa 682 Sq' - 63.38 SqM, benefits from a 20'11 private garden.
Comprises hallway, two bedrooms, bathroom, reception room and kitchen. No chain.
Tenure: Share of Freehold - 999 years from 24 June 1988 to and including 23 June 2987
Service Charge: n/a
Ground Rent: n/a
Council Tax Band: D
A favourite with many celebrities, this leafy suburb proves that living on the edges of London doesn’t mean you have to miss out on the best that the city has to offer. It’s a beautiful town with a village feel and has plenty of green areas — the opposite of what you might expect from industrial, concrete London.
A former fishing village, the lovely riverside district is an affluent area that offers all the benefits of the busy city centre without the hustle and bustle. It’s highly popular with families looking for a safe area with plenty of amenities and activities suitable for both children and adults.
If you’re looking for a place to set down roots, Chiswick, with its excellent schools, picturesque views and friendly, family-oriented vibe, is worth considering — and once you’re there, it’s unlikely you’ll ever want to leave!











































