Jameson Close | Acton | W3
Property Features
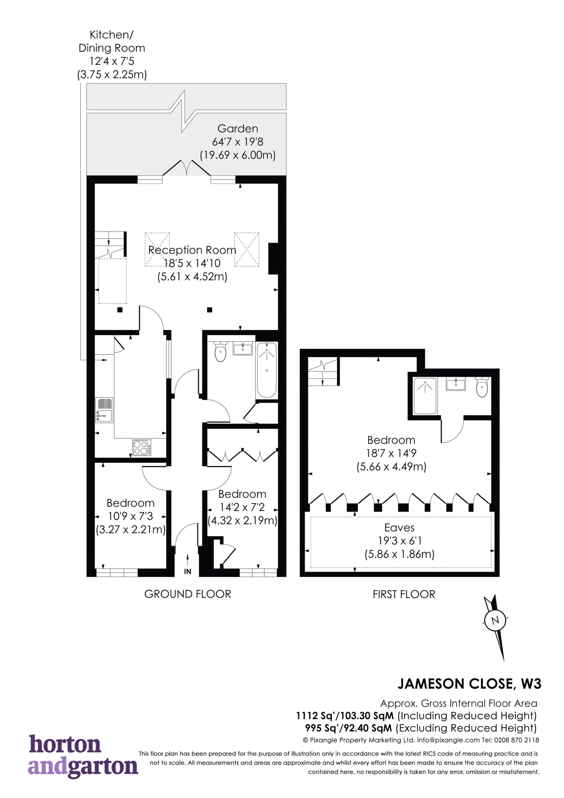
Terraced family house
Three bedrooms - Two bathrooms
995 Sq’ – 92.40 SqM
64' South facing garden
EPC rating C
Acton
About this property
Set within this private gated development on the North Chiswick - Acton borders this mid terraced family home, circa 995 Sq’ – 92.40 SqM, enjoys a 64' South facing garden and private off-street parking,
Comprises hallway leading to two bedrooms and bathroom, a 18'5 x 14'10 reception / dining room, separate kitchen and French doors to the outside space. Upstairs is an 18'7 x 14'9 bedroom with ensuite bathroom.
Tenure: Freehold
Council Tax: LBE Band G
Acton is a popular place to live in West London. Acton offers excellent transport connections, top schools, and vast green spaces such as Acton Park. The W3 postcode area has also seen considerable regeneration over recent years, meaning the area’s property ranges from period houses to modern new build properties.
Acton is exceptionally well connected, with seven stations—including Acton Main Line on the Elizabeth Line, which offers a swift 9-minute journey to Bond Street—as well as stations on the Central, Piccadilly, District and London Overground lines, making it an ideal spot for for travelling in and out of London.
Acton boasts numerous highly-regarded schools, both state and private, including but not limited to Twyford Church of England High School, Ark Soane Academy, Derwentwater Primary School, The Japanese School and Blooming Tree Pre Prep School.
Local amenities are equally appealing, with Acton High Street offering popular high street brands, while Churchfield Road is known for its independent shops, cafes and boutiques.






































